



































LMA Imobiliare va propune casă individuală 100% independenta energetic, situată în localitatea Sânpetru, zona Triaj, pe strada Șoimului. Construită în anul
2023 din cărămidă, casa oferă o suprafață utilă de 236 mp și terase de 66 mp, având o amprentă la sol de 186 mp.
Proprietatea dispune de un teren generos de 915 mp, cu acces la o stradă pietruită.
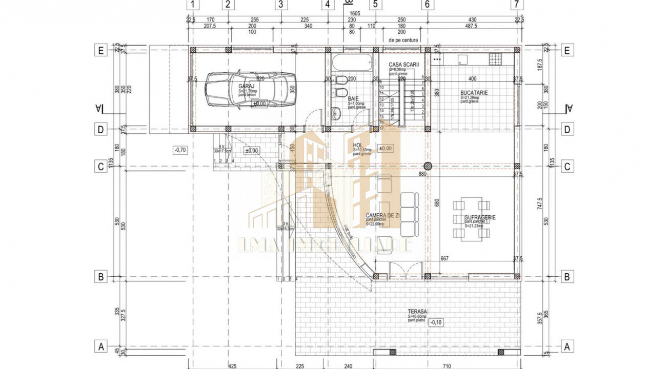
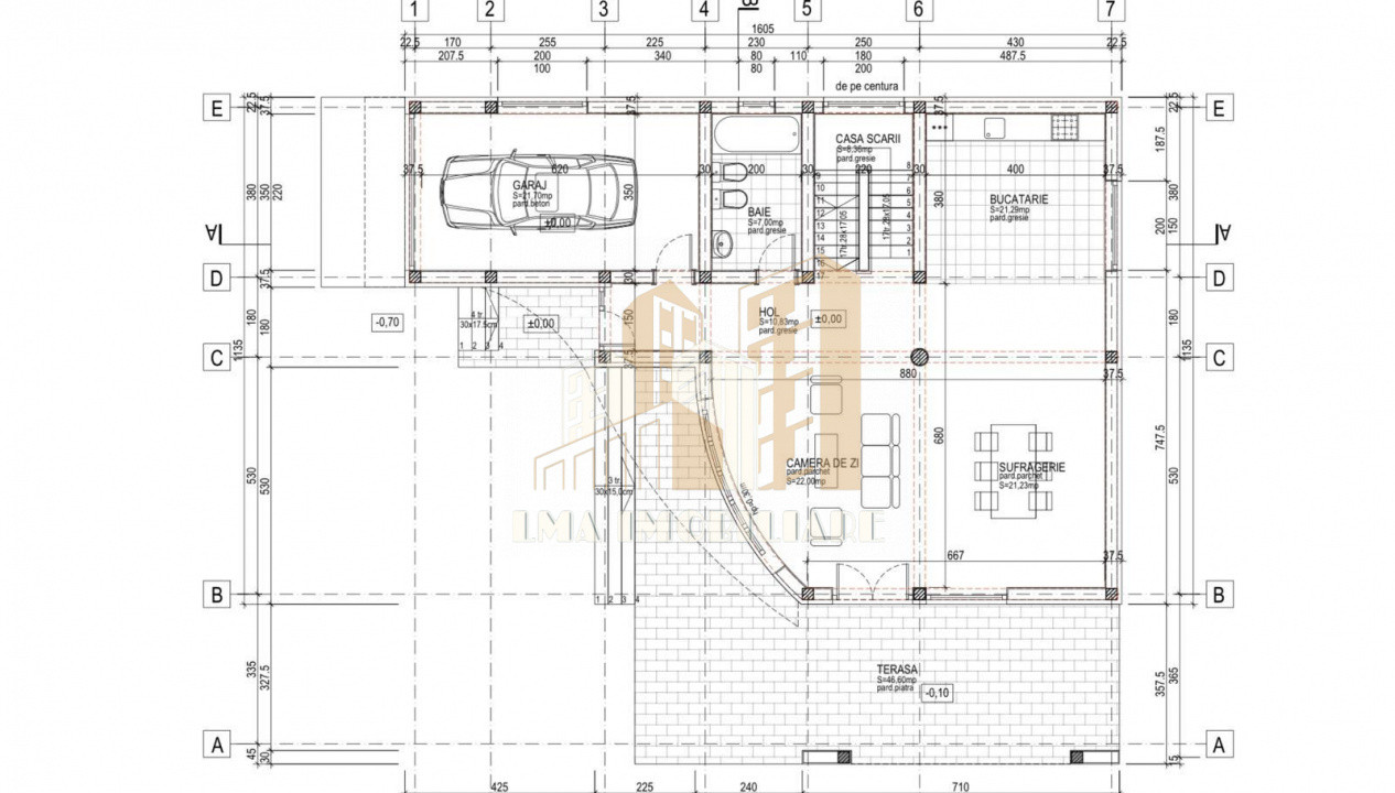
Construcția este organizată pe subsol, parter și mansardă, oferind un spațiu bine structurat și funcțional.
La subsol găsim zona tehnică și spațiu de depozitare pentru alimente.
Parterul cuprinde o cameră de zi, bucătărie, loc de servit masa, baie, acces in garaj, hol, casa scării și o terasă acoperită de 46 mp.
La mansardă se găsește dormitorul matrimonial cu baie proprie și dressing, având acces la o terasă, iar separat găsim două dormitoare pentru copii, baie(baia este neamaemajata gandita pentru dotare cu cada), hol și casa scării.
Casa este izolată termic cu polistiren (EPS 100) și are ferestre cu geamuri termopan (3 foi de sticla) și tâmplărie PVC (9 camere). De
asemenea, este echipată cu un sistem de supraveghere video, iar interiorul este finisat cu gresie, faianță și parchet,lemn(trepte casa scarii) iar
dormitoarele cu mochetă.
Încălzirea și apa caldă menajeră sunt asigurate de o pompă de căldură și o centrală termică pe gaz(cu butelii omologate), iar sistemul de încălzire
este prin pardoseală. Proprietatea este echipată și cu panouri solare de 10 kW, baterii de stocare de 11,6 kW, generator
trifazic, apă forată de la 43 m și fosă septică.
Casa se vinde mobilată și utilată conform fotografiilor.
Proprietatea dispune și de un foișor închis de 18 mp și o grădinăamenajată in care regasim si un mic lac cu peste, iar curtea este dotată cu sistem de irigație pentru gazon.
Pentru cumpărător, comisionul este 0%.
Pentru mai multe detalii și programări pentru vizionare, nu ezitați să ne contactați.
LMA Imobiliare :
Transformam visurile in adrese!