















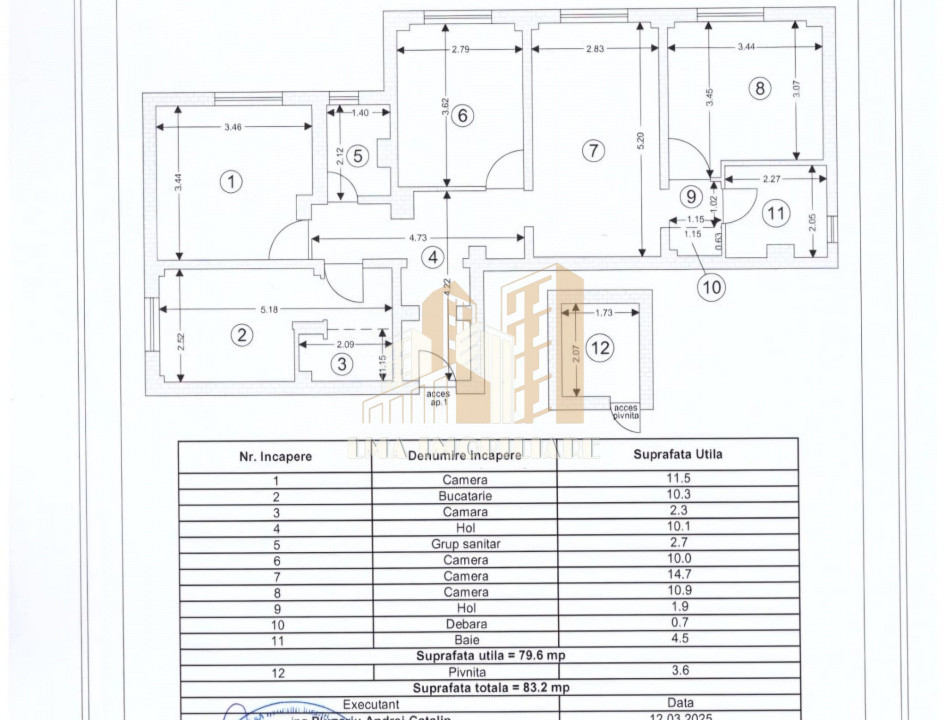
LMA Imobiliare va propune apartament cu 4 camere, cu o suprafață utilă de 79.6 mp situata in cartier Florilor-Craiter, Brasov Strada Harmanului la parterul unui imobil cu regim de inaltime S+P+8
Apartamentul este, ideal pentru familie cu copii.De asemenea e practic pentru cabinet medical,birou notarial sau alta activitate de birou.
Apartamentul este renovat intr-o nota moderna, mobilat și utilat.
Imobilul are urmatoarea decomandare:
Hol de acces si decomandare
Bucatarie cu camara
Grup sanitar cu dus Walk in
3 dormitoare
Debara
Baie principala cu cada
Boxa la subsol 3.6 mp
Dispune și de 2 locuri de parcare (abonament primărie), aproape de intrările în bloc și cu vizibilitate către ele din apartament.
Proprietatea ofera acces facil catre multe puncte de interes ale orasului Brasov,are in apropiere centre comerciale,gara,scoli,gradinite.
Daca acest imobil prezinta interes pentru dumneavoastra va asteptam la vizionare.
Comision cumparator 1,38%.
LMA Imobiliare:
"Transformam visurile in adrese"