







LMA Imobiliare va propune apartament 3 camere – 65 mp utili – Griviței – Vedere deosebită, situat la etajul 9 din 10 al unui imobil cu regim de inaltime P+10 constructie 1977-1990.
Apartamentul este decomandat, situat în zona Griviței, cu vedere panoramică spectaculoasă spre Tâmpa, dealul Colinei și Măgura Codlei.
Orientare ideală SE, S, V proprietatea beneficiind de lumină naturală pe tot parcursul zilei!
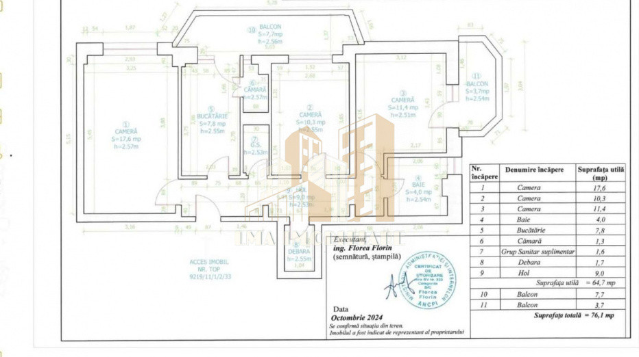
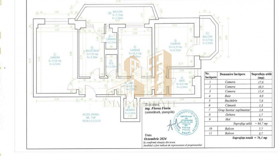
Proprietatea are urmatoarea decomndare :
Hol de acces si decomandare
Living
Bucatarie cu camara
Grup sanitar
Dormitor
Dormitor matrimonial
Baie
Debara
2 balcoane: 7,7 mp (cuprinde bucătăria și camera mică) + 3,7 mp (alocat dormitorului matrimonial)
Ideal pentru locuit sau investiție apartamentul oferă un confort sporit, datorită compartimentării și orientării.
- Liber de sarcini
- Finanțabil
- Disponibil din 01.01.2026
Pentru mai multe detalii sau pentru a stabili o vizionare, vă stau la dispoziție!
Comision agentie 2% din pretul de tranzactionare.
LMA Imobiliare:
Transformam visurile in adrese!